ELEVATION
|
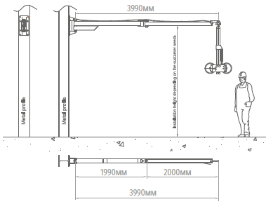
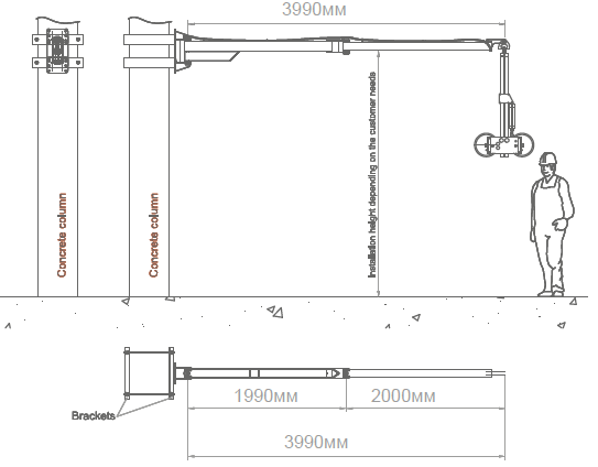
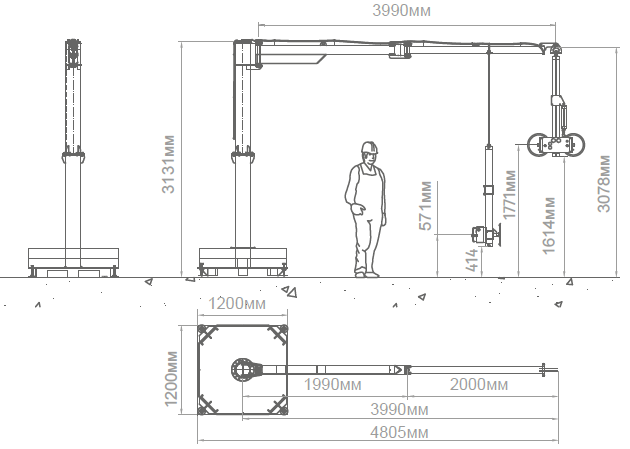
СЕРИЯ ELEVATION Шарнирно-сочлененные стрелы, поддерживаемые стрелы, легкие мосты - это оборудование ELEVATION SYSTEMS, которое TECNOCAT предоставляет компаниям, занимающимся обработкой стекла и серийным производством связанных элементов. Действительно очень практичные, легкие, простые в установке и, прежде всего, с основной целью - снизить нагрузку на операторов производственных линий и, таким образом, позаботиться о здоровье человека на благо компании. Практически любую серию присосок TECNOCAT можно объединить с подъемно-перемещающими системами ELEVATION SYSTEMS.
|
||||||

Подробную информацию можно увидеть здесь
CML
|
CML-B4-250 (GR) совместимость с: VNL-G2 - VNL-GB2
|
=
|
CML-B4-250 (WA)
|
CML-B4-250 (MP)
|
|
CML-B4-250 (WA)
|
CML-B4-250 (MC)
|
CL-B
|
|
|
|
|

|
CL-B250/500
|
ML-B

|
ML-B
|
PLM



|
PLMОДИН МОБИЛЬНЫЙ МОСТ (ПРИМЕР)
|
|
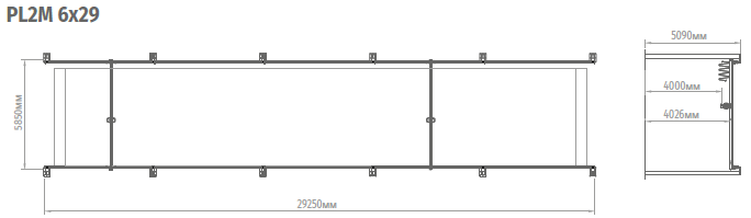
PL2MДВА МОБИЛЬНЫХ МОСТА (ПРИМЕР)
|


.png)
.png)
2.png)
.png)




.png)
.png)